Descriptif
A vendre, villa de trois étages, spacieuse et lumineuse, idéalement située à Courtaman.
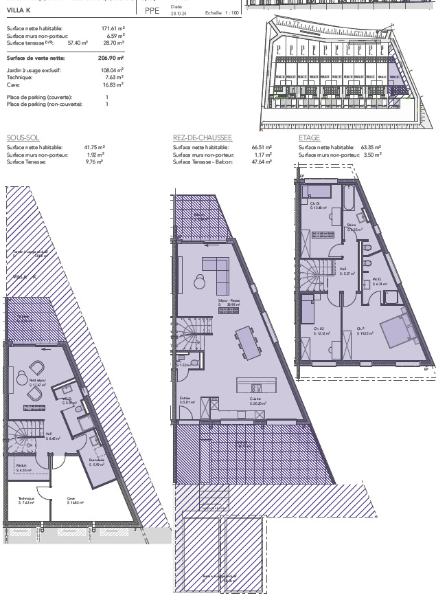
Elle est composée comme suit :
De nombreuses possibilités d'aménager les pièces différemment (chambre supplémentaire, dressing, bureau, etc...) sont possibles.
Découvrez votre futur lieu de vie en prenant contact avec notre équipe pour une présentation complète du projet.
Elle est composée comme suit :
- 1 hall d'entrée
- 1 cuisine ouverte sur le séjour (59.18 m2)
- 1 WC visiteurs avec lavabo
- 2 grandes chambres à l'étage supérieur (12.12 m2 / 13.48 m2 )
- 1 grande chambre parentale (19.22 m2)
- 1 salles de bains (WC / lavabo / baignoire)
- 1 petit séjour (17.67 m2) au rez inférieur avec salle de douche privative (WC / lavabo / douche)
- 1 buanderie avec lavabo
- 1 cave
- 1 réduit
- 1 balcon (8.89 m2)
- 2 terrasses (38.78 m2 / 9.76 m2)
- 1 grand jardin privatif de 53.98 m2
De nombreuses possibilités d'aménager les pièces différemment (chambre supplémentaire, dressing, bureau, etc...) sont possibles.
Découvrez votre futur lieu de vie en prenant contact avec notre équipe pour une présentation complète du projet.
Commodités
Environnement
- Village
- Quartier de villas
- Verdoyant
- Commerces
- Banque
- Poste
- Restaurant(s)
- Pharmacie
- Gare
- Arrêt de bus
- Enfants bienvenus
- Crèche/garderie
- Ecole maternelle
- Ecole primaire
- Piscine publique
Extérieur
- Balcon(s)
- Terrasse(s)
- Jardin
- Verdure
- Place(s) de parc couverte(s)
Intérieur
- Cuisine ouverte
- WC séparés
- WC visiteurs
- Cave
- Abri PC
- Réduit
- Non meublé
- Adoucisseur d'eau
- Triple vitrage
- Lumineux
Equipement
- Cuisine équipée
- Cuisinière
- Plaques vitrocéramiques
- Four
- Réfrigérateur
- Congélateur
- Lave-vaisselle
- Branchements pour colonne de lavage
- Douche
- Baignoire
- Téléréseau
- Panneaux photovoltaiques
- Connexion Internet
- Stores électriques
- Interphone
Sol
- A choix
Etat
- Neuf
Ensoleillement
- Optimal
- Favorable
Distances
Gare
627 m
8'
8'
1'
Transports publics
114 m
2'
2'
-
Ecole primaire
364 m
6'
6'
1'
Commerces
261 m
4'
4'
1'
Restaurants
351 m
11'
11'
2'






